Automotive factory "AgatSpecKomplekt"
OOO
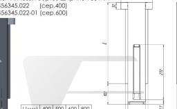
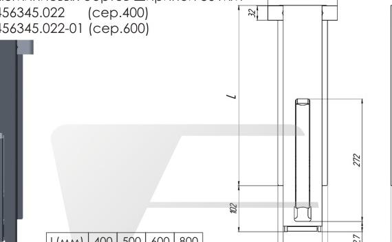
Veloce rack per disperso nell'aria e tenda per auto con meccanismo di blocco originale
Autoveicolistico > > Basamenti laterali
Autoveicolistico > > Basamenti laterali
